喜讯:麻辣无情重庆老火锅温州桥头店签约(图)!

发布日期:2017-10-24 浏览量:4568次

      

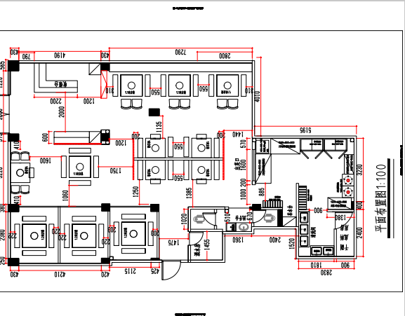
    浙江陈先生10月8月到重庆考察老火锅九宫格,总部人员于10月22日到现场协助测量和评估,总部与陈先生正式签约达成合作!桥头店150平方,15张餐桌90个餐位,内设3个包厢。

















扫描二维码分享到微信

下载二维码